Klikając "Akceptuję", udzielasz zgody na przetwarzanie danych osobowych dotyczących swoich aktywności w Internecie (np. identyfikatory urządzenia, adres IP). Szczegółowy opis celów i zakresu przetwarzanych danych znajdziesz w zakładce RODO . Zgoda jest dobrowolna.


Ta strona wykorzystuje pliki cookie w celu ulepszenia Twojego doświadczenia podczas przeglądania witryny. Wśród nich znajdują się niezbędne pliki cookie, które są przechowywane w Twojej przeglądarce, ponieważ są nieodzowne do działania fundamentalnych funkcji witryny. Dodatkowo, używamy plików cookie stron trzecich, które pomagają nam analizować i zrozumieć, w jaki sposób korzystasz z tej strony internetowej. Te pliki cookie będą zapisywane w Twojej przeglądarce wyłącznie po uzyskaniu Twojej zgody. Masz również możliwość zrezygnowania z tych plików cookie, jednak taka decyzja może wpłynąć na komfort przeglądania strony.

Funkcjonalne (niezbędne)
Analityczne
Marketingowe

Dom na sprzedaż Siechnice (gw), Iwiny, Pogodna

4 pokoje
151.48 m²
7 585,16 zł/m2

1 149 000 zł

Dom na sprzedaż
Nowa oferta

Szczegóły oferty

Symbol oferty NHM-DS-36868
Powierzchnia 151,48 m²
Powierzchnia użytkowa [m2] 151,48 m²
Powierzchnia działki [m2] 187 m²
Liczba pokoi 4
Liczba sypialni 3
Rodzaj domu bliźniak
Rodzaj budynku szeregowiec
Standard
Opłaty w czynszu zaliczka na fundusz remontowy, wywóz śmieci, wywóz nieczystości, woda/ryczałt na wodę, woda, Winda, sprzątanie, monitoring, fundusz remontowy, Części wspólne, administracja
Opłaty wg liczników Woda zimna, Woda ciepła, woda, prąd, gaz, CO
Stan lokalu deweloperski
Okna PCV
Instalacje nowe
Woda jest
Dojazd asfalt
Usytuowanie narożne
Drzwi antywłamaniowe tak
Przystosowania dla niepełnosprawnych tak
Rolety antywłamaniowe tak
Pomieszczenia
Powierzchnia pokoi 74,09 m2
Typ kuchni aneks kuchenny
Rodzaj kuchni aneks kuchenny - połączony z salonem
Typ łazienki razem z wc
Liczba łazienek 2
Powierzchnia łazienki [m2] 6,82 m2
Powierzchnia przedpokoi 8,57 m2

Opis nieruchomości

Nowoczesny dom z garażem w spokojnej części Iwin | 151,48 m² | 1 149 000 zł

Przestronny i funkcjonalny dom w zabudowie bliźniaczej, położony w cichej, zielonej części Iwin — tylko kilka minut od granic Wrocławia i 9,6 km od centrum. Idealny dla osób, które szukają wygodnego, nowoczesnego domu w kameralnym otoczeniu z szybkim dostępem do miasta.


Cena i metraż

Cena: 1 149 000 zł


Powierzchnia domu (całkowita): 151,48 m²
Powierzchnia użytkowa (bez poddasza): 105,27 m²
Poddasze opcjonalne: 29,30 m² (możliwość adaptacji)
Powierzchnia działki: 187,77 m²
Cena za m²: 9 418 zł
Liczba pokoi: 4
Garaż: tak — w bryle budynku
Miejsce postojowe: tak — naziemne


Termin oddania: II kwartał 2026


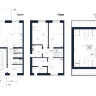
Układ pomieszczeń

Parter – 61,77 m²

  • Wiatrołap – 5,76 m²

  • Korytarz – 4,20 m²

  • Łazienka – 1,78 m²

  • Pomieszczenie gospodarcze – 2,90 m²

  • Salon z aneksem kuchennym – 33,14 m²

  • Garaż – 16,10 m²

Piętro – 59,60 m²

  • Korytarz – 4,37 m²

  • Pokój – 15,50 m²

  • Pokój – 15,51 m²

  • Pokój – 12,56 m²

  • Garderoba – 5,92 m²

  • Łazienka – 5,54 m²

Poddasze – 29,30 m² (opcjonalnie)

Możliwość wykonania dodatkowego poziomu: gabinetu, pokoju hobby, siłowni, przestrzeni rekreacyjnej lub kolejnej sypialni.


Atuty nieruchomości

Nowoczesna architektura i przemyślany projekt

Funkcjonalny układ, jasna strefa dzienna z dużymi przeszkleniami, przestrzeń idealna dla rodzin.

Komfort i wygoda

  • garaż w bryle budynku

  • dodatkowe miejsce postojowe

  • smart home w standardzie

Bezpieczeństwo i prywatność

  • teren zamknięty

  • spokojna, zielona okolica

  • kameralna zabudowa

Ekonomiczne rozwiązania

  • ogrzewanie gazowe

  • nowoczesne technologie

  • wysoka energooszczędność


Lokalizacja

Dom położony jest w Iwinach — atrakcyjnej, zielonej części okolic Wrocławia:

  • 9,6 km do centrum Wrocławia

  • szybki dojazd do Ołtaszyna, Jagodna i centrum

  • w pobliżu przystanki autobusowe

  • cicha, spokojna i przyjazna okolica


Dlaczego warto

To dom dla osób, które cenią nowoczesny standard życia, prywatność i funkcjonalną przestrzeń. Garaż, ogród oraz możliwość adaptacji poddasza dają duży potencjał aranżacyjny. Lokalizacja w Iwinach zapewnia ciszę i zieleń, a jednocześnie szybki dostęp do Wrocławia.


Kontakt

Justyna, N-Home Nieruchomości
884 707 192
justyna@n-home.pl

Zapewniamy kompleksowe wsparcie przy zakupie — doradztwo kredytowe, pełną obsługę transakcji oraz preferencyjne warunki u partnerów wykończeniowych.

Ogłoszenie nie stanowi oferty handlowej w rozumieniu art. 66 §1 Kodeksu cywilnego.

Lokalizacja nieruchomości

Podobne oferty

Nowa oferta

Dom na sprzedaż

Siechnice (gw), Iwiny

5 pokoi 122 m2 9 404,16 zł/m2
Nowa oferta

Obsługa klienta

Proszę wprowadzić poprawne imię i nazwisko
Proszę wprowadzić poprawny numer telefonu
Proszę wprowadzić poprawny adres e-mail
Proszę zaznaczyć wymagane zgody
Rozwiąż równanie:
24 3
Niepoprawny wynik