Klikając "Akceptuję", udzielasz zgody na przetwarzanie danych osobowych dotyczących swoich aktywności w Internecie (np. identyfikatory urządzenia, adres IP). Szczegółowy opis celów i zakresu przetwarzanych danych znajdziesz w zakładce RODO . Zgoda jest dobrowolna.


Ta strona wykorzystuje pliki cookie w celu ulepszenia Twojego doświadczenia podczas przeglądania witryny. Wśród nich znajdują się niezbędne pliki cookie, które są przechowywane w Twojej przeglądarce, ponieważ są nieodzowne do działania fundamentalnych funkcji witryny. Dodatkowo, używamy plików cookie stron trzecich, które pomagają nam analizować i zrozumieć, w jaki sposób korzystasz z tej strony internetowej. Te pliki cookie będą zapisywane w Twojej przeglądarce wyłącznie po uzyskaniu Twojej zgody. Masz również możliwość zrezygnowania z tych plików cookie, jednak taka decyzja może wpłynąć na komfort przeglądania strony.

Funkcjonalne (niezbędne)
Analityczne
Marketingowe

Działka na sprzedaż Kobierzyce, Domasław, Wrocławska

2359.00 m²
1 059,35 zł/m2

2 499 000 zł

Działka na sprzedaż

Szczegóły oferty

Symbol oferty NHM-GS-36688
Powierzchnia 2 359,00 m²
Standard
Okna PCV
Zagosp. działki częściowo zagospodarowana
Ukształtowanie działki płaska
Kształt działki nieregularny
Ogrodzenie działki siatka
Gaz brak
Woda jest
Dojazd asfalt
Otoczenie zabudowa mieszana
Odległość do komunikacji publicznej [m] 600 m
Odl. do sklepu [m] 400 m
Odl. do szkoły [m] 4 000 m
Położenie poza miastem
Prąd jest
Kanalizacja tak
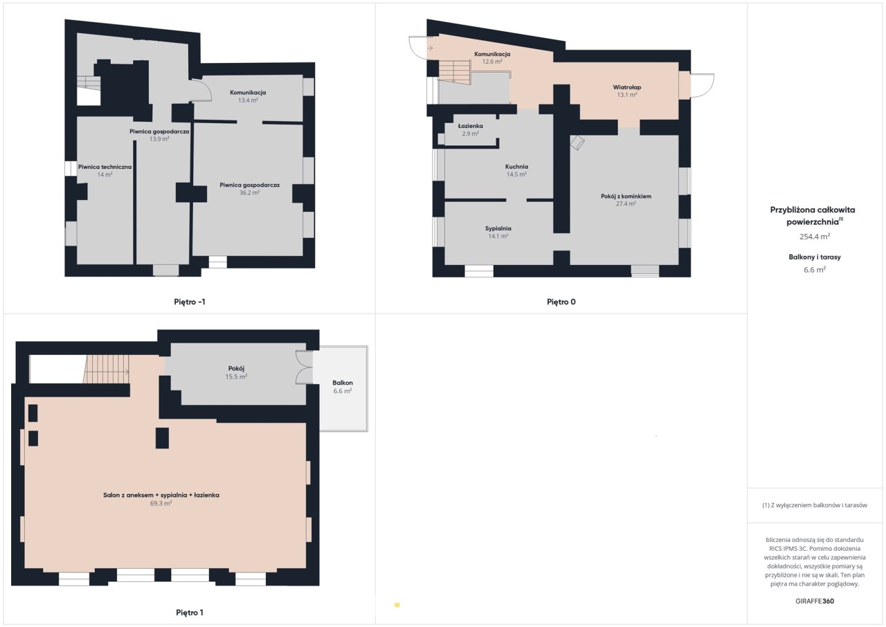
Pomieszczenia

Opis nieruchomości

Działka zabudowana ½ domu bliźniaczego + budynki gospodarcze | Domasław – ul. Wrocławska

Na sprzedaż działka o powierzchni 2359 m², położona przy ul. Wrocławskiej w Domasławiu (gm. Kobierzyce). Nieruchomość obejmuje trzykondygnacyjny budynek mieszkalny w stanie deweloperskim o powierzchni użytkowej 171 m², podzielony na 2 niezależne mieszkania, oraz budynki magazynowo-gospodarcze o łącznej powierzchni 581 m², które mogą zostać zaadaptowane do funkcji mieszkalnej lub usługowej.
 

Najważniejsze atuty działki

• Możliwość realizacji 2 niezależnych mieszkań – osobne wejścia + podział funkcjonalny
• Zgodnie z MPZP możliwa zabudowa mieszkaniowa jednorodzinna lub usługowa
• Wykonane kluczowe prace:
 – nowe stropy i dach
 – tynki, izolacje, stolarka okienna energooszczędna
 – instalacje: prąd, woda, ogrzewanie podłogowe, RTV, internet, domofon
 – kanalizacja podłączona do sieci
 – instalacja CO przygotowana pod pompę ciepła / kocioł elektryczny / gazowy
5 miejsc parkingowych od strony ulicy
• Obiekt nie figuruje w Gminnej Ewidencji Zabytków
• Bezpośredni dojazd z drogi publicznej – teren ogrodzony


Lokalizacja – Domasław

Atrakcyjne położenie inwestycyjne:
• przy trasach A4, A8, S8 — świetny dojazd i stały popyt na noclegi/usługi
• 600 m do stacji kolejowej
• 400 m do najbliższego sklepu
• 4 km do szkoły podstawowej
• 12 km do Wrocławia (centrum)


Wymiary i zagospodarowanie

Powierzchnia działki: 2359 m²
Możliwość dalszej zabudowy / zaplecza usługowego w budynkach gospodarczych
Numer działki 185/5, AM-1, obręb Domasław
Teren objęty MPZP


Przy zakupie zapewniamy wsparcie w uzyskaniu finansowania inwestycyjnego oraz możliwość współpracy z rekomendowanymi wykonawcami adaptacji i wykończenia.

Oferujemy także szeroki zakres usług związanych z obsługą rynku nieruchomości.

Prezentowana oferta nie stanowi oferty handlowej w rozumieniu Art. 66 §1 Kodeksu Cywilnego. Dane mają charakter informacyjny i mogą ulec zmianie.

Lokalizacja nieruchomości

Manager sprzedaży

Proszę wprowadzić poprawne imię i nazwisko
Proszę wprowadzić poprawny numer telefonu
Proszę wprowadzić poprawny adres e-mail
Proszę zaznaczyć wymagane zgody
Rozwiąż równanie:
26 8
Niepoprawny wynik