Klikając "Akceptuję", udzielasz zgody na przetwarzanie danych osobowych dotyczących swoich aktywności w Internecie (np. identyfikatory urządzenia, adres IP). Szczegółowy opis celów i zakresu przetwarzanych danych znajdziesz w zakładce RODO . Zgoda jest dobrowolna.


Ta strona wykorzystuje pliki cookie w celu ulepszenia Twojego doświadczenia podczas przeglądania witryny. Wśród nich znajdują się niezbędne pliki cookie, które są przechowywane w Twojej przeglądarce, ponieważ są nieodzowne do działania fundamentalnych funkcji witryny. Dodatkowo, używamy plików cookie stron trzecich, które pomagają nam analizować i zrozumieć, w jaki sposób korzystasz z tej strony internetowej. Te pliki cookie będą zapisywane w Twojej przeglądarce wyłącznie po uzyskaniu Twojej zgody. Masz również możliwość zrezygnowania z tych plików cookie, jednak taka decyzja może wpłynąć na komfort przeglądania strony.

Funkcjonalne (niezbędne)
Analityczne
Marketingowe

Mieszkanie na sprzedaż Wrocław, Stare Miasto, Przedmieście Świdnickie, Stawowa

1 pokoj
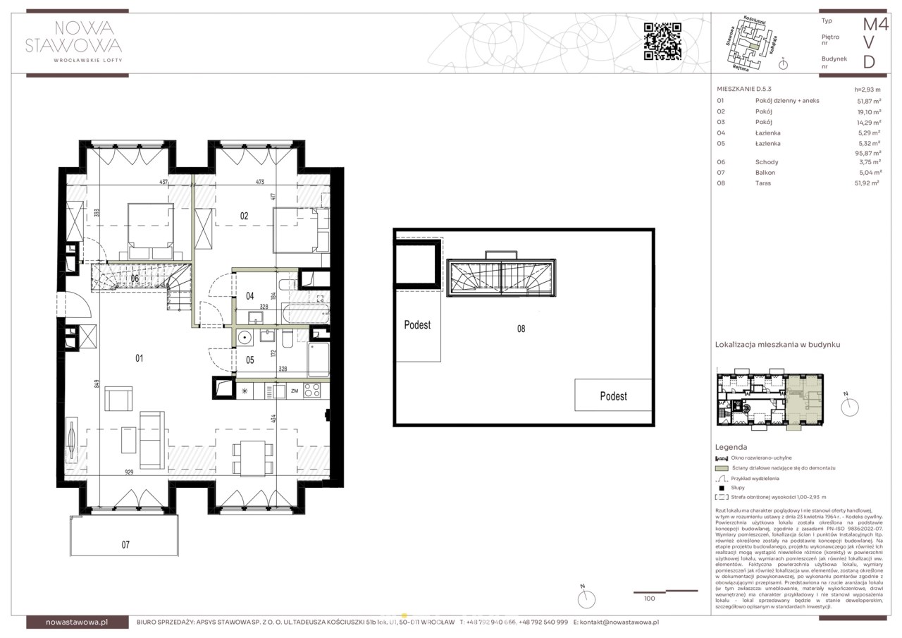
95.87 m²
27 353,84 zł/m2
5 piętro

2 622 413 zł

Mieszkanie na sprzedaż
Oferta specjalna

Szczegóły oferty

Symbol oferty NHM-MS-37056
Powierzchnia 95,87 m²
Powierzchnia użytkowa [m2] 95,87 m²
Powierzchnia balkonów/tarasów 5,03 m²
Liczba pokoi 1
Liczba sypialni 2
Rodzaj budynku apartamentowiec
Standard
Opłaty w czynszu administracja, CO, Części wspólne, fundusz remontowy, monitoring, ogrzewanie, telewizja kablowa, Winda, woda, woda ciepła, woda/ryczałt na wodę, wywóz nieczystości, wywóz śmieci, zaliczka na fundusz remontowy
Opłaty wg liczników CO, prąd, woda, Woda ciepła, Woda zimna
Piętro 5
Liczba pięter w budynku 5
Garaż brak
Stan lokalu deweloperski
Okna PCV 3 szyby, ciepły montaż
Instalacje nowe
Balkon brak
Liczba balkonów 1
Rok budowy 2027
Widok na osiedle
Gaz brak
Woda ciepła - miejska
Dojazd asfaltowa/kostka
Otoczenie centrum miasta
Ogrzewanie C.O. miejskie
Alarm tak
Winda tak
Liczba wind 1
Usytuowanie jednostronne
Drzwi antywłamaniowe tak
Przystosowania dla niepełnosprawnych tak
Pomieszczenia
Rodzaj kuchni aneks kuchenny - połączony z salonem
Liczba łazienek 1

Opis nieruchomości

Wyjątkowy apartament z przepięknym widokiem!

Na sprzedaż wyjątkowa nieruchomość o powierzchni 95,87 m², położoną na 5. piętrze nowoczesnej inwestycji w ścisłym centrum Wrocławia. Wyjątkowy, loftowy apartament w prestiżowej inwestycji Nowa Stawowa we Wrocławiu – w samym centrum miasta, w kwartale ulic Stawowej, Kościuszki, Kołłątaja i Rejtana. To rewitalizowany kompleks post-fabrycznych budynków z industrialnym charakterem, łączący historię z nowoczesnym stylem życia. W okolicy doskonała infrastruktura, liczne tramwaje i autobusy oraz kilka minut spacerem do Dworca Głównego, Rynku i Parku Staromiejskiego.


Termin oddania: II kwartał 2027r.

Idealny wybór dla:

-> osób pracujących w trybie hybrydowym, kreatywnych zawodów czy freelancerów,
-> par i rodzin szukających komfortu 
-> miłośników unikatowych, loftowych przestrzeni 
-> osób, które chcą przestrzeni rekreacyjnej w sercu miasta
-> inwestorów premium 

Lokalizacja, która pracuje za Ciebie
  • 3–5 minut pieszo do PKP/PKS
  • centrum miasta, blisko restauracji, atrakcji i komunikacji
  • idealne dla turystów, uczestników konferencji i osób w delegacji
  • 500m do Galerii Wroclavia

Zieleń w sercu miasta
  • ciche, wewnętrzne dziedzińce
  • starannie zaprojektowana roślinność
  • przestrzeń do odpoczynku 

Nowoczesny standard
  • nowy, elegancki budynek
  • dopracowane części wspólne
  • wysoki poziom komfortu i bezpieczeństwa


Rozkład nieruchomości:

Pokój dzienny + aneks 51,87 m²

Pokój - 19, 10 m²

Pokój - 14,29 m²

Łazienka 5,32 m²

Łazienka 5,29 m²

Balkon 5,04 m²

Taras 51,92 m²


Zapraszam do kontaktu!

Angela Barczak

884 707 477
N-Home Nieruchomości


Przy zakupie oferujemy wsparcie przy uzyskaniu finansowania na zakup nieruchomości z opcją dodatkowych korzyści! Szczegóły u Doradcy Finansowego.

Oferujemy szereg innych usług związanych z rynkiem nieruchomości. Zapraszamy do współpracy z naszym biurem.

Prezentowana oferta nie stanowi oferty handlowej w rozumieniu Art. 66 par. 1 Kodeksu Cywilnego, a dane w niej zawarte mają charakter jedynie informacyjny i mogą ulec zmianie.

Lokalizacja nieruchomości

Podobne oferty

Oferta na wyłączność
Video

Mieszkanie na sprzedaż

Wrocław, Stare Miasto

2 pokoje 62 m2 29 855,54 zł/m2
Oferta na wyłączność
Video
Oferta specjalna

Mieszkanie na sprzedaż

Wrocław, Stare Miasto

3 pokoje 96 m2 27 353,84 zł/m2
Oferta specjalna
Oferta specjalna

Mieszkanie na sprzedaż

Wrocław, Stare Miasto

4 pokoje 105 m2 22 209,99 zł/m2
Oferta specjalna

Manager sprzedaży

Proszę wprowadzić poprawne imię i nazwisko
Proszę wprowadzić poprawny numer telefonu
Proszę wprowadzić poprawny adres e-mail
Proszę zaznaczyć wymagane zgody
Rozwiąż równanie:
14 3
Niepoprawny wynik