Klikając "Akceptuję", udzielasz zgody na przetwarzanie danych osobowych dotyczących swoich aktywności w Internecie (np. identyfikatory urządzenia, adres IP). Szczegółowy opis celów i zakresu przetwarzanych danych znajdziesz w zakładce RODO . Zgoda jest dobrowolna.


Ta strona wykorzystuje pliki cookie w celu ulepszenia Twojego doświadczenia podczas przeglądania witryny. Wśród nich znajdują się niezbędne pliki cookie, które są przechowywane w Twojej przeglądarce, ponieważ są nieodzowne do działania fundamentalnych funkcji witryny. Dodatkowo, używamy plików cookie stron trzecich, które pomagają nam analizować i zrozumieć, w jaki sposób korzystasz z tej strony internetowej. Te pliki cookie będą zapisywane w Twojej przeglądarce wyłącznie po uzyskaniu Twojej zgody. Masz również możliwość zrezygnowania z tych plików cookie, jednak taka decyzja może wpłynąć na komfort przeglądania strony.

Funkcjonalne (niezbędne)
Analityczne
Marketingowe

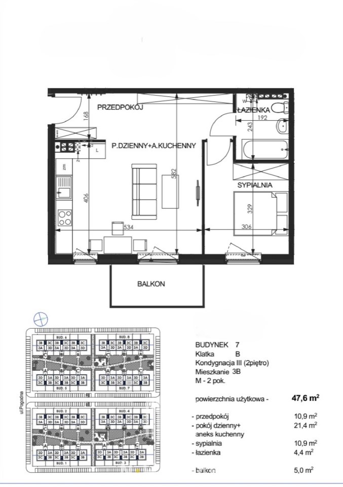
Mieszkanie na sprzedaż Miękinia, Lutynia, Pogodna

2 pokoje
47.40 m²
8 981,39 zł/m2
2 piętro

425 718 zł

Mieszkanie na sprzedaż
Nowa oferta

Szczegóły oferty

Symbol oferty NHM-MS-36886
Powierzchnia 47,40 m²
Powierzchnia użytkowa [m2] 47,40 m²
Powierzchnia balkonów/tarasów 5,00 m²
Liczba pokoi 2
Rodzaj budynku nowe budownictwo
Technologia budowlana silikat
Standard
Piętro 2
Liczba pięter w budynku 2
Stan lokalu deweloperski
Okna PCV
Instalacje nowe
Balkon jest
Rok budowy 2025
Plac zabaw tak
Gaz jest
Woda ciepła - miejska
Dojazd ASFALTOWA
Otoczenie las
Ogrzewanie C.O. GAZOWE
Usytuowanie jednostronne
Drzwi antywłamaniowe tak
Pomieszczenia

Opis nieruchomości

Na sprzedaż komfortowe mieszkanie 2-pokojowe o powierzchni 47,38 m² z balkonem, położone w spokojnej części Lutyni – zaledwie kilka minut od Wrocławia. To idealna propozycja dla osób szukających nowego mieszkania w cichej okolicy.

Atuty nieruchomości:

  • 2 pokoje – salon z aneksem kuchennym (21,14m2) + sypialnia (10,8m2)

  • balkon ok. 5 m² – idealny na poranną kawę

  • stan deweloperski – możliwość wykończenia według własnego stylu

  • nowoczesny budynek z windą, miejscami postojowymi oraz udogodnieniami dla rowerów

  • przestrzeń dla mieszkańców: zieleń, place zabaw, mała architektura

Lokalizacja:

  • Lutynia – spokojna, zielona okolica

  • tuż obok las Ratyński – świetne miejsce na spacery i rekreację

  • w pobliżu szkoła, przedszkole, sklepy i punkty usługowe

  • szybki dojazd do centrum Wrocławia samochodem, autobusem lub koleją

Dlaczego warto?

To mieszkanie to idealne rozwiązanie dla:

  • par szukających pierwszego własnego M

  • singli ceniących spokój i komfort

  • inwestorów – doskonała opcja pod wynajem, bliskość strefy ekonomicznej Wróblowice/Błonie
 Mieszkanie w Lutynia to połączenie bliskości miasta i ciszy natury. Jeśli szukasz nowego, funkcjonalnego lokalu pod Wrocławiem – ta oferta jest właśnie dla Ciebie!

W ofercie posiadam również inne mieszkania i domy na rynku pierwotnym i wtórnym.

Zapraszam do kontaktu 
Michał Cepuch 
tel. 884 707 778

Przy zakupie oferujemy wsparcie przy uzyskaniu  finansowania na zakup nieruchomości z opcją dodatkowych korzyści! Szczegóły u Doradcy Finansowego.

Oferujemy szereg innych usług związanych z rynkiem nieruchomości. Zapraszamy do współpracy z naszym biurem.

*Prezentowana oferta nie stanowi oferty handlowej w rozumieniu Art. 66 par. 1 Kodeksu Cywilnego, a dane w niej zawarte mają charakter jedynie informacyjny i mogą ulec zmianie

Lokalizacja nieruchomości

Manager sprzedaży

Proszę wprowadzić poprawne imię i nazwisko
Proszę wprowadzić poprawny numer telefonu
Proszę wprowadzić poprawny adres e-mail
Proszę zaznaczyć wymagane zgody
Rozwiąż równanie:
16 1
Niepoprawny wynik