Klikając "Akceptuję", udzielasz zgody na przetwarzanie danych osobowych dotyczących swoich aktywności w Internecie (np. identyfikatory urządzenia, adres IP). Szczegółowy opis celów i zakresu przetwarzanych danych znajdziesz w zakładce RODO . Zgoda jest dobrowolna.


Ta strona wykorzystuje pliki cookie w celu ulepszenia Twojego doświadczenia podczas przeglądania witryny. Wśród nich znajdują się niezbędne pliki cookie, które są przechowywane w Twojej przeglądarce, ponieważ są nieodzowne do działania fundamentalnych funkcji witryny. Dodatkowo, używamy plików cookie stron trzecich, które pomagają nam analizować i zrozumieć, w jaki sposób korzystasz z tej strony internetowej. Te pliki cookie będą zapisywane w Twojej przeglądarce wyłącznie po uzyskaniu Twojej zgody. Masz również możliwość zrezygnowania z tych plików cookie, jednak taka decyzja może wpłynąć na komfort przeglądania strony.

Funkcjonalne (niezbędne)
Analityczne
Marketingowe

Mieszkanie na sprzedaż Wrocław, Psie Pole, Zakrzów, Gen. L. Okulickiego

4 pokoje
66.00 m²
12 106,05 zł/m2
1 piętro

798 999 zł

Mieszkanie na sprzedaż
Nowa oferta

Szczegóły oferty

Symbol oferty NHM-MS-36947
Powierzchnia 66,00 m²
Powierzchnia balkonów/tarasów 3,40 m²
Liczba pokoi 4
Liczba sypialni 3
Rodzaj budynku blok
Standard
Piętro 1
Liczba pięter w budynku 4
Stan lokalu deweloperski
Okna PCV
Instalacje nowe
Balkon loggia
Rok budowy 2025
Gaz brak
Dojazd asfalt
Otoczenie zabudowa wielorodzinna
Ogrzewanie C.O. miejskie
Winda tak
Pomieszczenia
Rodzaj kuchni aneks kuchenny
Liczba łazienek 1
Liczba WC 1

Opis nieruchomości

Nowe, gotowe do użytku 4-pokojowe mieszkanie z loggią 

BEZ PROWIZJI 
BEZ PCC 

Przestronne, funkcjonalne i gotowe do wprowadzenia mieszkanie 4-pokojowe na nowoczesnym osiedlu Wrocław – Zakrzów. Idealne dla osób szukających gotowego lokalu bez oczekiwania na odbiór

Osiedle wyróżnia się dużą ilością zieleni, spójną architekturą, placami zabaw oraz wygodną komunikacją z centrum miasta.


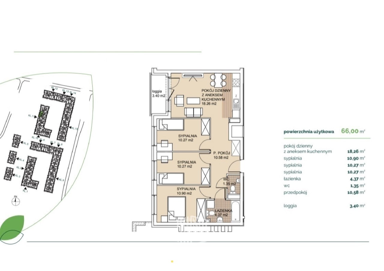
Metraż i układ pomieszczeń

Powierzchnia użytkowa: 66,00 m²

  • loggia: 3,40 m²

Pomieszczenia:

  • Pokój dzienny z aneksem kuchennym – 18,26 m²

  • Sypialnia – 10,27 m²

  • Sypialnia – 10,27 m²

  • Sypialnia - 10,90 m2

  • Łazienka – 4,37 m²

  • WC – 1,35 m²

  • Przedpokój – 10,58 m²

  • Loggia – 3,40 m²

Jasna strefa dzienna daje wiele możliwości aranżacyjnych. Trzy niezależne sypialnie świetnie sprawdzą się jako sypialnia główna, pokój dziecięcy, gabinet lub pokój gościnny. Oddzielne WC zwiększa komfort użytkowania, co jest dużym atutem w mieszkaniach rodzinnych.


Atuty mieszkania

  • Gotowe do użytku — bez oczekiwania, możesz wejść od razu.

  • Układ dwustronny — mieszkanie dobrze doświetlone.

  • Osobna łazienka i WC — praktyczne rozwiązanie dla codziennego komfortu.

  • Loggia 3,4 m² — miejsce na wypoczynek i poranną kawę.

  • Trzy niezależne, ustawne sypialnie.

  • Nowoczesne budownictwo z windą i udogodnieniami dla mieszkańców.

  • Atrakcyjny metraż — idealny dla osób pracujących zdalnie lub rodzin z dzieckiem.

Atuty inwestycji

Osiedle tworzy nowoczesna, zielona przestrzeń mieszkalna zaprojektowana z myślą o wygodzie:

  • liczne tereny zielone i wewnętrzne dziedzińce

  • place zabaw i strefy rekreacyjne

  • windy we wszystkich budynkach

  • miejsca postojowe naziemne i podziemne

  • bliskość przystanków komunikacji miejskiej

  • dostęp do sklepów, punktów usługowych i ścieżek spacerowych

Osiedle cechuje wysoka jakość wykonania oraz spójna, nowoczesna architektura.


Dlaczego to mieszkanie?

To gotowy, komfortowy i świetnie rozplanowany lokal w dynamicznie rozwijającej się części Wrocławia. Dobrze sprawdzi się jako mieszkanie na start, dla rodziny lub jako inwestycja pod wynajem. Efektywny układ pokoi, loggia oraz pełna funkcjonalność sprawiają, że jest to propozycja bardzo konkurencyjna w tej części miasta.


 

Zadzwoń i zapytaj o dostępne mieszkania 1,2 i 3 pokojowe

 

W ofercie posiadam również inne mieszkania i domy na rynku pierwotnym i wtórnym.

Zapraszam do kontaktu 
Michał Cepuch 
tel. 884 707 778


Przy zakupie oferujemy wsparcie przy uzyskaniu  finansowania na zakup nieruchomości z opcją dodatkowych korzyści! Szczegóły u Doradcy Finansowego.

Oferujemy szereg innych usług związanych z rynkiem nieruchomości. Zapraszamy do współpracy z naszym biurem.

*Prezentowana oferta nie stanowi oferty handlowej w rozumieniu Art. 66 par. 1 Kodeksu Cywilnego, a dane w niej zawarte mają charakter jedynie informacyjny i mogą ulec zmianie

Lokalizacja nieruchomości

Podobne oferty

Mieszkanie na sprzedaż

Wrocław, Psie Pole

3 pokoje 68 m2 12 488,89 zł/m2

Mieszkanie na sprzedaż

Wrocław, Psie Pole

3 pokoje 57 m2 11 295,45 zł/m2
Bez prowizji

Mieszkanie na sprzedaż

Wrocław, Psie Pole

3 pokoje 56 m2 11 963,06 zł/m2
Bez prowizji

Mieszkanie na sprzedaż

Wrocław, Psie Pole

4 pokoje 78 m2 9 574,33 zł/m2

Manager sprzedaży

Proszę wprowadzić poprawne imię i nazwisko
Proszę wprowadzić poprawny numer telefonu
Proszę wprowadzić poprawny adres e-mail
Proszę zaznaczyć wymagane zgody
Rozwiąż równanie:
27 7
Niepoprawny wynik